|
I)- DESENHO TÉCNICO
Desenho geométrico -
Estudo das projeções ortogonais, oblíquas e cônicas; representação gráfica
em 2 e em 3 dimensões.
Materiais de desenho convencionais - Uso e função.
Escala gráfica de redução
- Escalas utilizadas em Arquitetura e projetos correlatos.
II)- DESENHO ARQUITETÔNICO
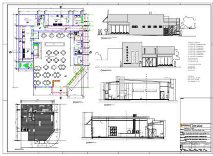
Princípios técnicos da
Representação gráfica de Projetos - Arquitetônicos e
complementares.
Representação gráfica de
Arquitetura - Planta Baixa, Cortes, Elevações, Planta de Cobertura,
Implantação, Situação e Localização.
Estatística no projeto
arquitetônico - Cálculos da área construída, útil, projetada; taxa de
ocupação, taxa de impermeabilidade do terreno, etc.
Legislação, Normas e
Convenções técnicas - aplicadas à Arquitetura e ao desenho
arquitetônico.
Prancha técnica do desenho
- Formatos da ABNT, modulação e dobra da folha, legendas, estatística e
carimbo.
Esquadrias - tipos,
funções, legenda, funcionamento e representação gráfica.
Escadas - Representação
gráfica em planta, elevações e cortes, cálculo dimensional, fórmula de
Blondell.
Ergometria - Princípios
básicos da relação de medidas do corpo humano com os objetos, mobiliário e
espaço em que vive. |
Telhados e Coberturas -
Representação gráfica em planta, elevações e cortes; tipos de telhados e de
telhas, e suas representações, cálculo de inclinação.
Rampas - Normas técnicas
da ABNT, cálculo de inclinação.
Acessibilidade -
Princípios e conceitos, normas técnicas.
III)- MATEMÁTICA APLICADA
Geometria básica -
Definições e conceitos; cálculos de áreas de figuras geométricas, de
perímetro e volume de sólidos geométricos
IV)- DIGITALIZAÇÃO GRÁFICA EM
2D - AUTOCAD
Introdução ao programa Acad -
Apresentação e personalização do AutoCad.
Comandos
de criação e edição do desenho técnico
Desenho
Arquitetônico com o AutoCad - Planta Baixa, Cortes, Elevações, Planta
de Cobertura, Implantação, Situação e Localização.
Humanização
de Projetos - Inserção de
blocos de equipamentos, mobiliário e elementos vegetais para a humanização
interior e exterior da edificação.
Apresentação de Projetos para Aprovação na
Prefeitura
Padrão das pranchas de apresentação seguindo normas técnicas da ABNT e
regras utilizadas nas prefeituras.
Arquivo de plotagem - Preparo do arquivo de plotagem.
Aplicações de texturas em superfícies
- Acabamento do desenho.
|